Appartement familial, lumineux, avec grande terrasse au dernier étage.
Zavarine Immobilier est ravi de vous présenter ce bien familial.
Située dans un secteur bien desservi, cet appartement est un véritable havre de paix en dernier étage.







Prix: 285 000€
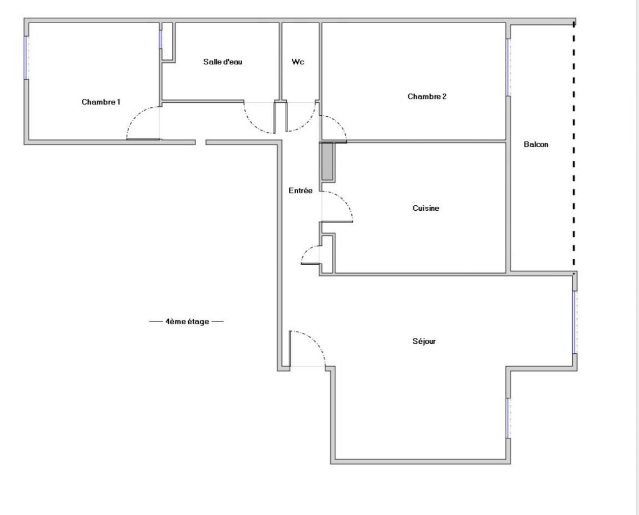
Plan du bien
Votre agence ZAVARINE IMMOBILIER vous propose à la vente cet appartement aux volumes généreux.
Située au dernier étage, dans un environnement calme et sécurisée avec de nombreux stationnement.
Proche des arrêts de bus et commerce, ainsi que des établissement scolaire, accessibles en seulement 5 minutes à pied, il bénéficie d’une localisation parfaite pour allier sérénité et mobilité.
Parfaitement agencé, il se compose d’un large séjour orienté sud-est, une cuisine équipée, avec accès à la terrasse. Coté nuit deux chambres spacieuses ainsi qu’une salle d’eau avec une douche balnéo.
- Surface totale: 85m²
- Chambre: x2
- Salle de bains ×1
Caractéristiques
Localisation idéale
Décines Bonneveau
Diagnostique technique
DPE en classe énergétique C
GES en C
Exposition
Le séjour est exposé Sud-Est,
Parking
Place stationnement dans la propriété
ZAVARINE IMMOBILIER vous présente ce bien situé à deux pas de toutes commodités dans l’Est Lyonnais.
environnement:
Secteur Décines Bonneveau
- Localisation idéale, proche des écoles
- Transport à proximité
- A 5min à pied des commerces
- A 10min à pied du centre ville